
Neustädter Markt und Stadthofgebäude
Kaufhofgebäude ohne Denkmalschutz
In der Denkmaltopographie der Stadt Hanau aus dem Jahr 2006 ist das Kaufhofgebäude am Neustädter Markt als Denkmal verzeichnet. Spätestens seit dem Auszug der Kaufhof AG haben sich die Begründungen für die Denkmaleigenschaft geändert oder sind entfallen.
Aus Sicht des Vereins Stadtbild Deutschland e.V. – Ortverband Hanau ist das öffentliche Interesse an der Erhaltung des Gebäudes nicht mehr gegeben. Auf Antrag kann die Denkmaleigenschaft aufgehoben werden. Lesen Sie nachfolgend unsere Einschätzung
Umgestaltung und Nutzung des ehemaligen Kaufhofgebäudes
Das vom Kaufhof aufgegebene Gebäude an der Ostseite des Marktplatzes bietet die Gelegenheit für eine Umgestaltung der Nutzung und der damit einhergehenden Anpassung der Fassade. Der Zweckbau hat das Ende seiner technischen Nutzungsdauer erreicht.
Die städtebauliche Reparatur an dieser Stelle hat vor allem Bedeutung für die Attraktivität des Marktplatzes als zentraler Platz der Innenstadt. Hierzu bedarf es der Umgestaltung der Fassade, da diese platzprägend ist. Um den städtebaulichen Kontext wiederherzustellen, soll die historische Fassade rekonstruiert werden, denn sie entspricht der Geschichte des Marktplatzes und somit der Architektursprache des Ortes.
Die derzeit bestehende marktseitige Glasfassade ist in ihrer Formensprache beliebig und hat in ihrem architektonischen Ausdruck keinerlei Bezug zur reichen Hanauer Bautradition.
Daher muss eben auch genau an dieser Schnittstelle städtebaulich korrigiert werden. Hierzu ist lediglich die äußerst ortsuntypische Glasfassade des Kaufhofgebäudes zurück zu bauen. An ihre Stelle tritt ein eigenständiger Baukörper, der vor dem Gebäude errichtet wird. Dieser Baukörper nimmt die Flucht der im Krieg verlorenen marktseitigen Fassaden wieder auf; und auf ihm werden die ursprünglichen Hanauer Marktplatzfassaden aufgebracht.
Diese Rekonstruktion der historischen Fassaden entspricht in den Maßen den alten Bauakten, die im Stadtarchiv aufbewahrt werden. Damit erhält der Marktplatz sein ursprüngliches Gesicht zurück ohne die Nutzung des Kaufhofgebäudes zu beinträchtigen
Die gezeichneten vier Schnitte schneiden jeweils die historische Fassade eines Hauses. In dem gesonderten Fassadenbauteil ist ein Laubengang angeordnet. Man bewegt sich auf diesen Laubengängen gewissermaßen hinter den wiederhergestellten Fassaden mit Blick durch die historischen Fensteröffnungen zum Markt.
Die Wohnungen werden marktplatzseitig über diese Laubengänge angebunden. Es ist vorgesehen, dass auch zu den beiden Seitenstraßen die Anteile der historischen Ansicht wiederhergestellt werden, um das Gesamtbild abzurunden.
Unter Berücksichtigung der vorhandenen statische Strukturen des Kaufhofgebäudes werden bei der geplanten Maßnahme in dieser Hinsicht keine Schwierigkeiten erwartet. Auch sind die Tragfähigkeiten der Bestandsdecken mehr als ausreichend für eine Wohnnutzung.
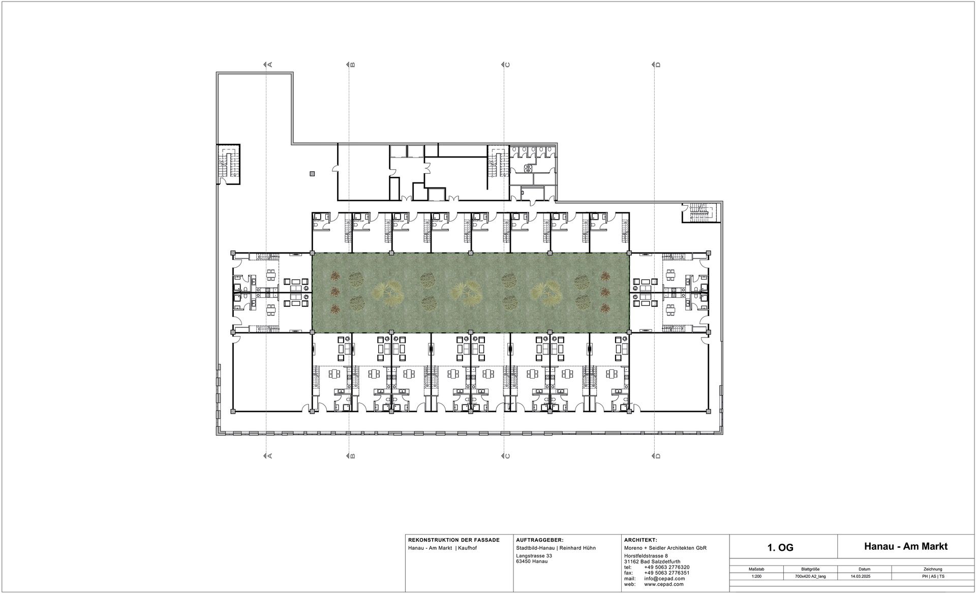
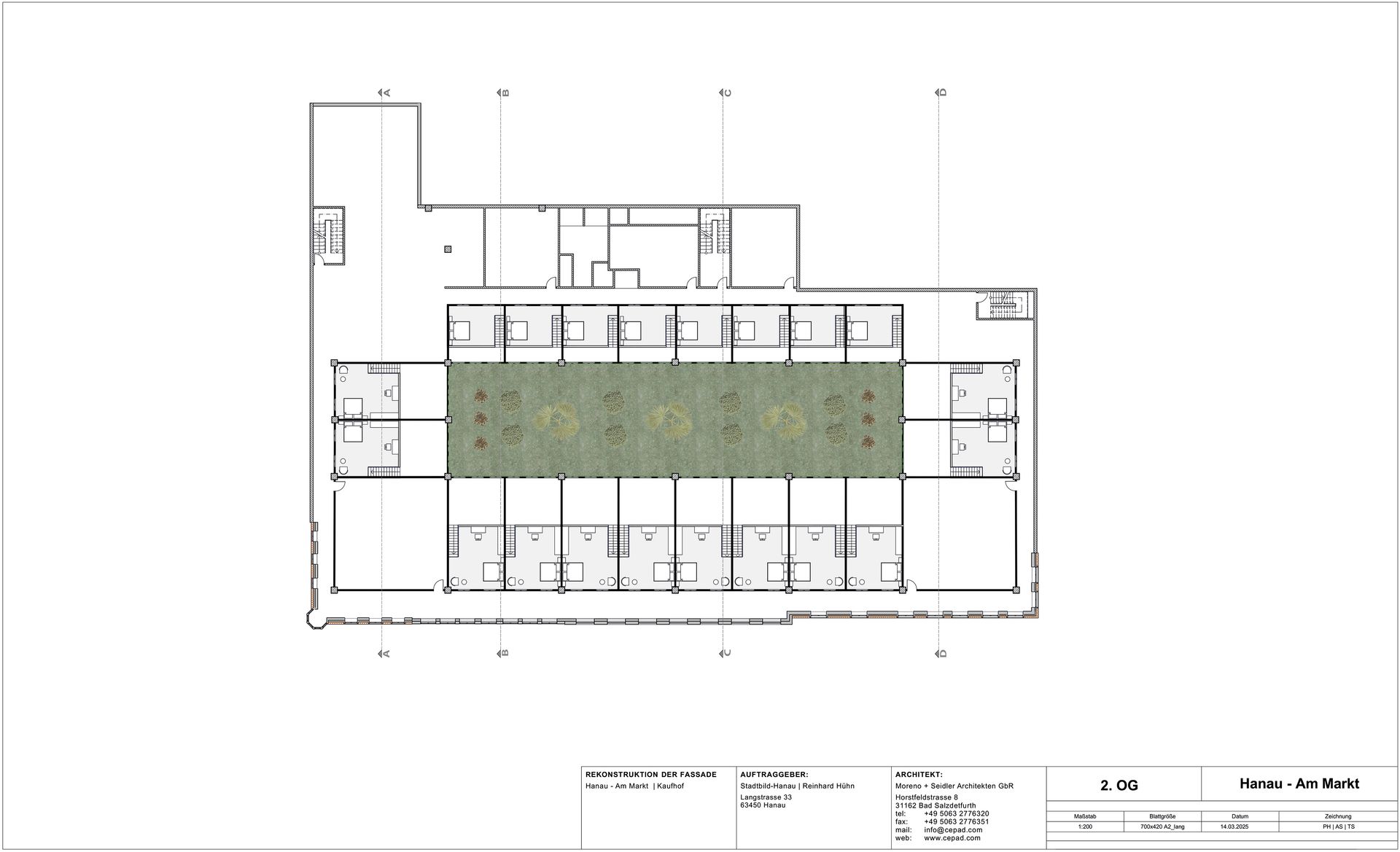
Es sind Wohnungen mit Loft Charakter vorgesehen. Diese sind sehr gefragt. Ausgebildet sind diese mit einer normalhohen Wohnebene und einer niedrigeren Schlafraumhöhe auf einem Podest. Die insgesamt 40 Loft-Wohnungen haben eine Nutzfläche zwischen 50m² und 90 m².
Im Kern des Gebäudes ist ein Einschnitt geplant, der einen luftigen Innenhof bildet. Dieser soll als gemeinschaftlicher Garten gestaltet werden. Damit ergibt sich zum einen die Belichtung der Wohnungen als auch ein ruhiger Grünbereich für die künftigen Bewohner.
Die Nutzung des großflächigen Erdgeschosses ist von der Erschließung der darüberliegenden Wohnbereiche vollkommen unabhängig. Das Erdgeschoss kann also insofern eine vollkommen andere Nutzung erhalten.
Auf dem Dach ist eine großzügige Dachterrasse angeordnet, die beispielsweise als SkyBar mit Blick über Hanau betrieben werden könnte.
Alternativ zu einer Nutzung durch Wohnungen wäre auch die Nutzung als CityHotel denkbar, was in Anbetracht dieser Lage ebenfalls sehr attraktiv sein kann.
14.3.2025
Dipl. -Ing. Architekt Thomas Seidler
Moreno + Seidler Architekten GbR
D-31162 Bad Salzdetfurth | Horstfeldstrasse 8 | tel: +49 5063 2776350
mail: info@cepad.com | web: www.cepad.com

Ansichten

Lageplan

Schnitt A – A

Schnitt B – B

Schnitt C – C

Schnitt D – D

Wohnetage 1. OG

Wohnetage 2. OG
